DASHILAR PILOT 2011 - 2015

Dashilar Pilot was an important part in the area's Nodal Development renewal scheme, landing small-scale interventions as best-practice initiatives for the development of the area.
 
This was a long-term investment in creative projects which explore the possibilities of a wide range of collaborations between architects, designers, artists, local residents, and business owners. Starting from launching a few examples in the area, the project aimed to activate the creativity within Dashilar and to grow a community that can create and build the area together.

Dashilar’s architectural, as well as it’s cultural, history is woven into the sedimental bricolage of the often ad-hoc, and increasingly dilapidated, residential and commercial buildings within its environs. Unlike many of the other historic areas ofBeijing, Dashilar was never trapped in some, late Qing dynasty die. Successive system’s, government’s and economy’s have all impressed upon the built environment. Less effective in leaving its mark constructively has perhaps been Beijing’s rapid evolution of its speculative property market. As Dashilar was left relatively untouched during the market reforms of the 90’s and 00’s it has retained its urban fabric and historic authenticity, but lost its stature and standard of living. Though still retaining some of this rich cultural history, Dashilar, despite its poor architectural quality, still houses and hosts a populous community of residents, tourists and passersby. It is not however only the historic architecture and traditional urban fabric that are endangered. Due to a lack of public facilities, no responsive engineering to its aged infrastructure, and the impact from globalised mass tourism on small traditional businesses and craftsmen, an entire community is under threat. Dashilar Pilots a series of special pilot projects that aim to take on these challenges as an opportunity to make creative thinking truly matter.

Architectural Space
community building
cultural identity

DASHILAR PILOT 01: ARCHITECTURAL SPACE

As one of Beijing's most distinctive and original historic quarters, Dashilar's architectural and cultural lineage is embedded in the sedimental bricolage of its often ad-hoc, and increasingly dilapidated, built environment. The Dashilar Pilot series directly takes on the material, infrastructural, and architectural challenges prevalent in the area today to explore alternative, progressive and sustainable ways of upgrading local living conditions.


The pilots included in this section all address issues of infrastructural paucity, high population density, environmental and architectural degradation, and/or micro-community conflicts. The following is divided into the three thematic subsections: Hutong Urbanism, Zayuan 2.0, and Adaptive Reuse. The projects therein range in scale from the entirety of Dashilar’s urban context and organisation, to specific physical conditions or instances, to innovative and functional adaptations of individual buildings.


Dashilar Pilot’s aim has always been to help develop and push exceptional pilots from the preliminary experimental phase of our project into the next stage of Construct New Community, and eventually, onto the final stage of Widespread Adoption and Usage. This evolution is clear in such examples as People's Architecture's exemplary Plug-in project, which moved from the nascent stages of conceptualisation to execution and experimental trial at Yangmeizhu Xiejie No. 72, to further development and implementation in consultation with the community along Tiaozhou Hutong. The Plug-in is now under official government consideration for more extensive application throughout Beijing’s historic areas and beyond. As Dashilar Project transitions into its next phase of concrete implementation and practice; more pragmatically and directly engaging with the community, private and public investors, and non-government organisations, this retrospective collection of architectural pilots from 2011-2015 provides valuable insight into the projects foundational initiatives and subsequent development.


SECTION 01: HUTONG URBANISM


展览海报.jpg

Courtyard / Vision: Dashilar Settlement Research

ADA大栅栏观察站 炭儿胡同15号|ADA Dashilar Observation Station  No.15 Tan'er Hutong

北京建筑大学建筑设计艺术(ADA)研究中心|Beijing University of Civil Engineering and Architecture Graduate School of Architecture Design and Art (Graduate School of ADA)

In collaboration with Dashilar, ADA Dashilar Observation Station is set up to carry on research of settlements, architecture and residential conditions by Beijing University of Civil Engineering and Architecture Graduate School of Architecture Design and Art. As one of the iconic area in the Old City of Beijing, Dashilar is a strong representative of such settlement pattern and residential behaviors. We focus on people's living behaviors, the relationship between the existing space and current residents’ understanding of living space as well as their new demand and life vision brought by the change of life style. By research, we conduct observation, recording and analysis. The exhibition “Courtyard / Vision Dashilar Settlement Research  reflects both the current courtyards conditions and residents’ life vision by presenting some of the ongoing research’s mapping and survey, along with images and video clips to show the vivid life scenes.

 

(Re)iterate

Jordan Kanter and Rolando Rodriguez-Leal

Activity 1: Dashilar (Re)iterate workshop

(Re)iterate organised a student workshop spanning 10 days in which students from various diverse academic disciplines congregated together to learn about, decipher, discuss, and troubleshoot the current situation in Dshilar. Many academic exchange activities were also held in conjunction with this event, which topics spanning from architecture and design, to social sustainability an community outreach.

Activity 2: Flash design charrette

Building on the themes and information generated by (Re)iterate’s summer workshop and in conjunction with Dashilar Platform, a tool bag containing relevant information and Dashilar was presented to each invited competitor, who was then asked to brainstorm relevant and innovative strategies and ultimately produce and present a proposal for the development of an historical structure in Dashilar. Participants had five days to complete their submission based on the distinct and complicated development environment and social context of area. After a heated competition and fruitful dialog, BaO architects took first prize in the competition.

 

Hutopolis

大外廊营胡同8号厂|Factory, No.8 Dawailangying Hutong

梁AQSO 建筑事务所|ARQUITECTOS OFFICE

Hutopolis: How will we experience our cities in 20 years?

How will we experience our cities in 20 years?The scenario of urban transformation that is happening in Asia and China offers a wide range of challenges to analyze: most Chinese cities can be described as a field of urban, social and economic contrasts. The continuous process of destruction and construction often leave unanswered questions related to the quality of life in new settlements and issues related to preservation.

“Hutopolis” is a research program that aims to investigate new boundaries for the urban development in China and specifically its Hutongs in Beijing. The study intends to re-use and enhance the existing urban framework and networks as a key idea to generate a new evolution of the city. By picturing, analyzing, and re-imagining a part of the city, “Hutopolis” wants to engage preservation and modernization into a dialogue to foster an evolution. AQSO arquitectos office organized this exhibition curated by Giannantonio Bongiorno, with the support of a wide team of designers, architects, filmmakers and software developers. This investigation on the urban environment will be presented asa generative urban game for the people to interact, understand and create an imaginary city map based on Beijing’s “Hutongs”.


SECTION 02: ZAYUAN2.0


Humble Hostel

炭儿胡同9号|No.9 Tan’er Hutong

曹璞|Cao Pu

Humble Hostel - A tiny space "GIVEN BACK" to the courtyard

A group of youngsters came up with the idea to turn the empty space of a hutong yard into a hostel. The yard was already occupied by many small kitchens built by the neighbors, stashed and parked bicycles, as well as piles of random junk.

The arrival of the young people would serve to further congest the yard, so we needed to find a way to live peacefully with the neighbours.

Therefore this design chooses to ‘given back"’ and be humble by using a set of sliding walls that each houses a bed, desk, and door, and serves to continuously change the proportion of indoor and outdoor space accordingly based on the current need. As such, when there are not many guests at the hostel, some space can be given back to the yard by sliding the doors around to “compensate” for the area already occupied by the kitchens, and when the hostel is full there is still enough space to accommodate all guests.

The “given back" space beneath the roof can be used as a public leisure area or a bar for the young people, in addition to a space for the neighbours to store their bicycles.

However, renovation with such a humble gesture still required big effort, the initial site on Yangmeizhu Xiejie was denied because of he neighbour's objection. A few months later, prototype construction was completed. It is located in a typical Dashilar messy courtyard at Tan er No.9.

Humble Hostel may not be the lavish choice, but guests will experience authentic Beijing hutong courtyard life here by living together and "intermingling" with the local people. In the meantime, Humble Hostel is a long-term community project needing your support. 

More importantly, through this way of "give back", also triggered thoughts about how to rescue the illegal and-ons in courtyards, from fullfillng basic living needs from the past to soft public space function, spatially reviving a healthy community ecology.


NO.22 Courtyard house renovation project in Cha'er Hutong

茶儿胡同22号|NO.22 Cha'er Hutong

hyperSity

This project focuses on a series of public issues in old town courtyard redevelopments, tries to challenge the difficulties by creativity, uses pilot implementation as a start point, promotes the collaboration between the locals and merchants, ultimately bring positive impact on Da Shi La regional redevelopment. We took courtyard No.22 as a sample to redevelop. Rather than diving into design immediately, we propose Dashilar to develop its own industries, build up a community economical industrial chain first. Once it gets built, the external resources would be attracted and involved to establish a regional self renew mechanism. The architectural space, at the end, would act as a platform for this self renews mechanism. After site investigation, we came up with a question: “new constructions, illegal constructions, unauthorized constructions, can they be part of our cultural heritage in the future?" Our answer is positive. By means of crowd funding, Internet online operation, and space redesign, we believe the renew will put on a positive impact both on local lives and regional cultural continuity. Historically, Da Shi La is an area gathering merchants from all over the country. "Foreign culture", "grass-routed culture", "mix culture" is its inherent features. In this sense, as a cultural continuity, and a difference from elite communities, It's foreign, mix featured culture needs a continuation.


Micro-Hutong

杨梅竹斜街53号|No.53 Yangmeizhu Xiejie

标准营造|ZAO/standardarchitecture

Micro-Hutong is a building experiment by Zhang Ke’s standardarchitecture team on the Yang-Mei-Zhu street of Dashilan area. The goal of the project is to search for possibilities of creating ultra-small scale social housing within the limitations of super-tight traditional hutong spaces of Beijing.


2015BJ-oustudio-01.jpg

Open Dashilar-Indoor Hutongs Inner Hutong

延寿街 26号|No.26 Yanshou Street

Open Union Studio

Inspired by traditional Beijing hutongs, an indoor hutong system which includes a small alley and tiny boxrooms are fit into a real "old hutong house".While light pass through metal wire and fabric, the shape of boxrooms have been sketched out from illusion to reality , merge with fragments of old furniture, woods and power poles, shows the old memories of Beijing Hutongs. The exhibition previews a new accommodation to reuse of fragmentary spaces in hutongs. It creates unique boxrooms experience in hutong styles for travellers.


Courtyard House Plug-in

杨梅竹斜街72号,苕帚胡同30/32/37号| No.72 Yangmeizhu Street, No.30/32/37 Tiaozhou Hutong

众建筑|People's Architecture Office

The Courtyard House Plug-in is designed as a quick, simple, and cost-effective way of renovating courtyard houses. The Plug- in is suitable for courtyards in poor condition and are partially occupied. This is a common problem in Dashilar. To upgrade them to modern standards, prefabricated modular units are inserted into existing courtyard houses while leaving original conditions intact. Parts already occupied are left untouched. The units are built to provide a quality of living and level of energy efficiency impossible to achieve with traditional structures. Infrastructural elements such as plumbing, floor heating, insulation, and wiring are integrated into the Plug-in Units and run above the ground to reduce excavation.

The experimental Courtyard House Plugin, first introduced in 2014 in Dashilar, has now expanded into a systematic solution for the historic neighbourhood. People's Architecture Office in collaboration with Dashilar Platform will be exhibiting the next generation of the award-winning and patent-pending project. The New Plugins include ones built for local residents as well as gallery, live/work and bed and breakfast uses. They include new features such as ultra thin plugin panels, waterless toilets that require no plumbing, mezzanines, showers that expand out, walls that fold or slide open, and rooms that lift up.


A-Void

杨梅竹斜街2号|No.2 Yangmeizhu Street

临界工作室|reMIX studio

A-Void is one of the pilot projects in the Dashilar area and started as a small installation in one of the uninhabited rooms of the ground floor, exhibiting our concept for a potential residential redevelopment.

The plot consists of a series of disconnected volumes on multiple levels arranged around two little courtyards, shared by different tenants. The design was initially focused only on the vacant volumes but, given the heavy fragmentation of the properties and the serious structural pathologies of some buildings, soon it became clear that only operating on the whole courtyard, we could intervene effectively. The renovation would then have a much stronger impact that could eventually benefit both the current and the future tenants.

At the moment, while Dashilar Platform is establishing a negotiation with the local residents, the architects are working on different spatial configurations that reflect the different possible scenarios of property redistribution. The design aims to solve the vertical communication between the two main interior levels and the roof terraces as well as improving the critical illumination and ventilation of the ground floor.

The construction of staircases that work as light-wells creates new vertical cores that help organize the whole internal program. A series of mezzanines maximizes the internal floor area while creating interesting visual connections; at the same time, small terraces and overhanging volumes extend the rooms outwards producing a new interface between interior and exterior spaces.

 


Hutong Parasitic - White Woods Hotel

杨梅竹斜街56号|No.56 Yangmeizhu Street

野建筑事务所|Yeah Archkids

Hutong Parasitic is a white woods which is parasitic in Hutong. It is a public space with exhibition or reality show during the day, while it is a youth hotel at night in BJDW.

1.It reforms the space with parasitic, and it inherits the gene of the original space in Hutong.

2.It is put in the building to strengthen the structure with a low gentle profile, and it could keep the traces of live as much as possible.

3.This modular framework includes, as long as willing to, many basic modules like toilets to improve living conditions in Hutong.

4.This variable multiple-functions system could solve the problem of the limited space.

5.It could solve the conflicts of spaces through switching between public space and intimate space quickly.

6.The scalable changeable modular system is a reasonable and sustainable reform system with low cost and highly efficient.

7.With the fast growth and expansion of the Hutong Parasitic, the space comes into a network which would become an abundant and poetic forest.


Elevation

香港中文大学建筑学院朱竞翔教授及团队|Professor Zhu Jingxiang and his team from School of Architecture, Chinese University of Hong Kong

 

Elevators are of daily use for the people in Beijing, while Hutong dwellers use Zayuan (courtyard space for multiple families) as the doorway to their private spaces. Jammed in the overcrowding pattern of the city, these transition semi- public spaces are viewed not suitable for active communications.

However distinguished they might be from each other, the courtyard and the elevator incorporate into a hyper-mixed concept, which is shown in the ELEVATION project. The fusion of the elevator with the courtyard offers a dramatic variation of space, a new tool for the interventional urban renewal.


Compact Living Cell

Ab Rogers Design

Proposal for the conversion of 22 sqm household units into hyper functional live-work cells. We will preserve the existing architecture but radically transform its performance, maximizing efficiency by stacking activities vertically and horizontally and introducing services through multi-functional plug-in interventions that utilise soft and hard technology.

Plug-in 01: Wet plug (4 sqm)

A pre-fabricated water closet unit containing toilet, shared sink (kitchen/bathroom), shower and pipework. A grey water system allows reuse of water i.e water used for washing could supply the toilet system and a courtyard allotment.

Plug in 02: Soft Insulation

A zip-up system of high-tech, interlocking duvets creates an outer skin, insulating the space.

Plug in 03: Work and Sleep (4 sqm)

An integrated, live-work tool allows multiple activities to go on in parallel, consuming wasted voids.

Plug in 04: Solar Catcher

Solar heating and photovoltaic cells on the roof supply electricity and hot water to the kitchen and support under-floor heating throughout.


Innovate Prefabricate

标赫|Buro Happold, Bess Tech, Micro Organica, Alex Skinner

We are approaching infrastructure though from a totally different perspective.  As opposed to a large scale, inflexible system, we are proposing a nodal system, with the goal of being 100% off grid as well as flexible in installation, expansion and dis-assemblage.  In many areas experiencing high flux such as Dashilar in the historic central district of Beijing, an infrastructure that is adaptable and flexible is key towards accommodating rapidly changing needs and urban types of growth. 

We are also pushing the notion of building design and construction with the same attitude as infrastructure, developing hybrid systems that are low impact with the end goal being designed structures that can be assembled, augmented and disassembled with ease. 

The lifecycle of both infrastructure and architecture perhaps then take on a new type of paradigm, one that has a planned beginning and ending. In this sense, urban spaces are not defined by primary function or by spatial form but rather by metabolic functions and processes. 。


The Thick Wall

延寿街78号|No.78 Yanshou Jie

大木设计事务所|DAMU Design

For the future development of Dashilar, we believe in upgrading the architecture in an incremental fashion: restoring, preserving, and innovating different elements of the building, and to do this, we propose a series of propose a series of facade interventions in the Dashilar area, that we call the Thick Wall. The Thick wall is a 3 dimensional volumetric façade between the hutong and courtyard that serves both private and public functions. These new structures will organise and screen existing functional elements of the facade and add new functions that for new useable spaces.

 

The Thick Wall is reexamination of the existing functional elements found in Dashilar. The existing functional elements can be divided into two main categories, the social and the practical. The Thick Wall aims to integrate both the social and the practical through interventions of form and function, adding new elements such as solar power and charging stations for both visitors and local inhabitants to interact, charge phones and e-bikes, and exchange information about the surrounding area. The form of the wall provides new spaces for increasing interior light, outdoor seating, storage, display, to further encourage community engagement while transforming the spatial character of the Dashilar built environment.


For Market, for Home - Outreach Courtyard

茶儿胡同1号|No.1 Cha'er Hutong

京北吉(北京)建筑咨询有限公司|Helix Architects

Our design proposes to open up the solid hutong walls, encourage communications between the inner spaces of Zayuans and the streets, thus to promote the vitality of the neighbourhoods. Principles of optics shall be fully explored; genuinely interesting openings with mobile shutters would be cleverly integrated with surface materials of various transparency or reflectivity, in order to expand the sense of spaciousness from visual psychological aspect, and create the interactions as “to see and to be seen” between inside and outside of the courtyard buildings. Open and outreaching street facades will combine greenery and urban furniture, which not only cover existing public facilities randomly placed on the walls, but also cleverly prevent car parking and give back the buildings their clear storefronts.

The design also emphasises on expanding spaces vertically. Within the houses, one could take advantage of the spaces underneath the traditional pitched roofs; movable partitions and furniture will be installed for optimising areas for business activities during the day, while turning the room back to residential use at night; thus the public and private spaces become stretchable and mutative.

 

adaptive reuse


suzuki kitchen & suzuki shop

杨梅竹斜街10-14号|No.10-14 Yangmeizhu Xiejie

梁井宇|Liang Jingyu(Approach Architecture)

Lynch+Song建筑设计工作室|Lynch+Song Architectural Design Studio

铃木食堂|Suzuki Kitchen

漫步杨梅竹斜街,很难不去注意铃木食堂,这座安静的小院子,好像洗净尘世铅华,静静等待来客走近。古唐的外形气质,由内而外,向过客讲述着中式美学。

铃木食堂位于杨梅竹斜街10~14号。它的前身,只不过是一个狭隘、拥挤(仅宽8米)的旧院。然而,穿过院门,竟有24米深的空间,这样的蕴藏,似乎暗示了将来的变迁。2013年,场域建筑梁井宇为杨梅竹斜街10~14号的改造提供了整体方案。

为更好利用小院内部空间,增加通透性,将狭窄的原通道打开通向外部街道,增加商业沿街面积。而隔壁的杨梅竹斜街16号(旧时为和含会馆),将在后期改造中,打通两条深入庭院院墙的通道。由此,改造后,两边的建筑可还原为正统院落结构,杨梅竹斜街10~14号作为厢房坐落在东侧。

2013年的夏天,杨梅竹斜街10~14号的改造刚刚做好屋顶,周宁看了一眼就忘不掉了,于是他们决定在杨梅竹开一家铃木食堂。

2013年“北京国际设计周大栅栏新街景”,改造后的杨梅竹斜街14~16号作为“大栅栏更新计划展”会场,首次亮相。

建筑的整体设计由朱迪、周宁以及Lynch+Song建筑设计工作室共同完成。装修之前,朱迪与周宁在此举办了一次日本摄影师个人作品展。那时正值北京的10月中旬,屋里温度比屋外还冷,于是,他们计划做整体地暖。因此只能舍弃木质地板,经过反复研究,最后决定以水磨石做地面。从开始计划到最后制作完成,共花费了12天左右,每一寸地面色以及里面的小石子分布,都是经过精心设计。

关于门窗设计也费了不少功夫。在此之前,梁井宇原本设计的落地门为唐朝木格式,玻璃与木格的结构,视觉上美观,放北京的环境,却很容易积灰。做展时,大家一起擦了一整天,竟然只完成了五分之一,因此,周宁决定换门,最后由设计师Athi重新做了设计,虽然说换门诸多不舍,但新设计不仅容易清洁,同时采光效果也得到了最大化。

为了能够长期展览周宁心爱的陶瓷手作,他们决定再租下毗邻的16号院,将院墙打通,才成了现在的铃木商店和小院。与杨梅竹斜街10~14号院相比,16号院的结构更老,施工比铃木商店更难,但是慢工出细活,经过细心设计与规划,铃木商店从开始改建到经营,如今也快一年了,也算是边经营边慢慢进步,才形成了现在的样子。话虽如此,铃木商店的名字却是周宁在一分钟内决定的,他希望商店和铃木食堂一样,以最朴素的姿态存在,这正符合他们的所好。

“这(铃木食堂、商店)如同孩子,虽然每一个都是独立的自己,但又有很多相同之处,而这种风格是我们心里的一种东西。”周宁这样说。时过境迁,原来的杨梅竹斜街10~16号已焕然一新。现今,每周除了礼拜二,铃木食堂里每天都聚集着慕名而来的饕客,置身画卷般的情境中,这样的感受,正是老房子的魅力所在。


The Tea House

朱家胡同9号|9 Zhujia Hutong

Localdesignstudio

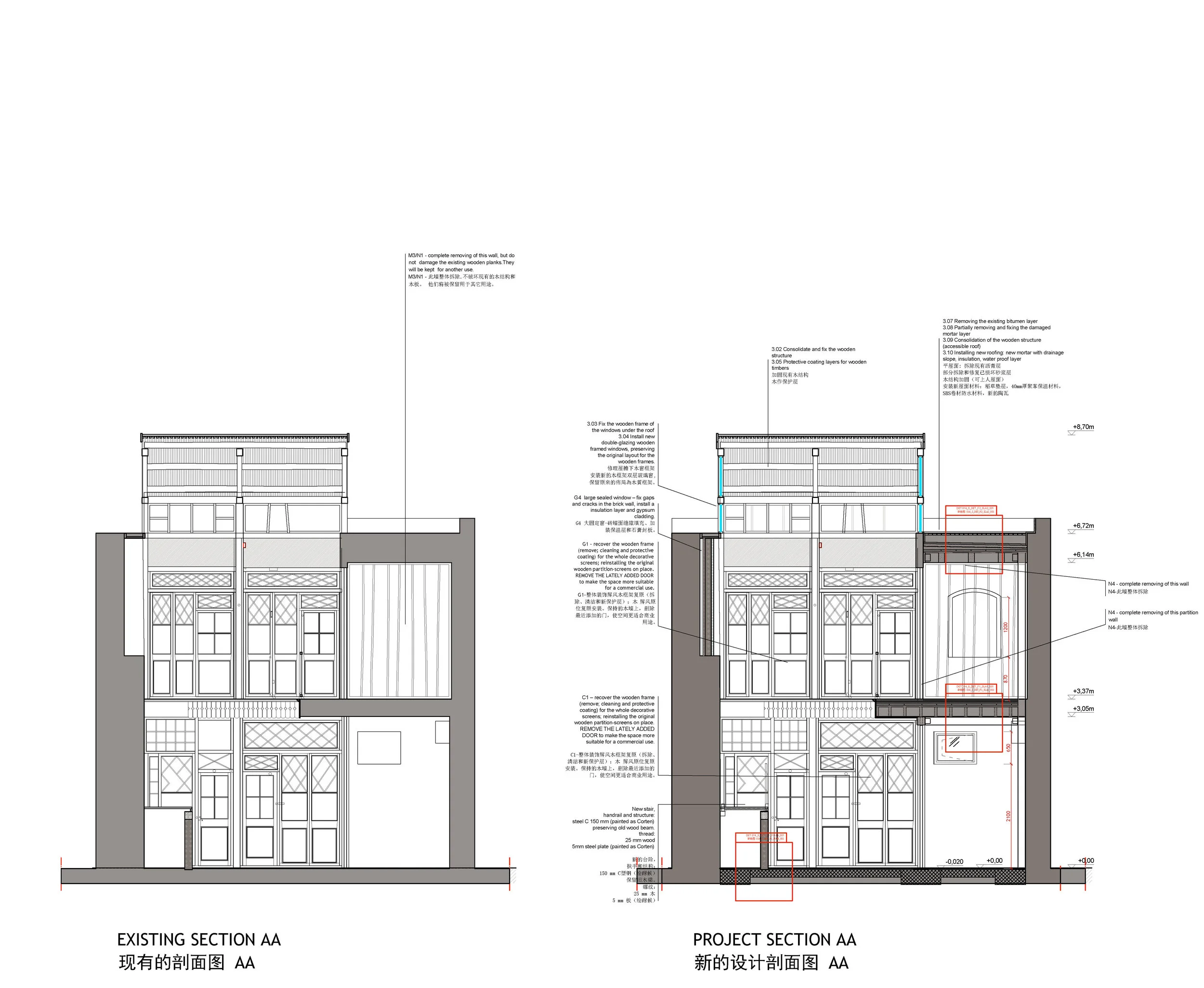
The architectural renovation and strengthening for Zhujia No.9 was designed by LocalDesignStudio during 2012-2013. The overall design approach foraims to reinforce and adapt the old structure of the house to a contemporary use, without compromising its historic character. The intervention is not meant to recreate the past, but rather save what we have inherited, enjoying it safely and in the aim of conveying the flavor of traditional constructions into new forms of living. From the perspective of the architectural language, the old parts of the house will be restored according to the original layout, while the new interventions will be recognizable by the use of new materials or colors. Careful attention will be dedicated to the use of new materials, which will be limited only where strictly necessary, in order to fully respond to the principle of reversibility. More specifically, the new interventions will only be used to guarantee the required safety and contemporary usability, while a more conservative approach will be applied for any other aesthetic matter or aspect related to the feeling of the space. An example for safety: reinforcement of the staircase handrail is needed; an example for usability: new glass windows, water drainage, new toilette or sink.

In 2014, lead by architect designer Chen Xing, fashion brand “Bifu” moved into Zhujia No.9, further interior fit-out was carried out, currently the space is Chen Xing’s studio and Bifu flagship store.


Yangmeizhu Xiejie No.39

杨梅⽵竹斜街39号| No.39 Yangmeizhu Xiejie

Phil Ma

Soloist is an independent specialty coffee company located in Beijing, dedicating to provide a cultural customer experience by providing premium coffee crafted by artisanal baristas and a vintage industrial interior decoration. The building of 39 Yangmeizhu Xiejie used to be a printing house, then it became a public bathroom, and finally changed into a hardware store.

It is not a traditional building in the hutong, nor a modern factory plant — this is our first impression about this architecture. The ceiling on the ground floor is relatively high while the sloped one on the first floor is made of old wooden beams and tiles. This structure provides us the chance to present an industrial style in this space. The terrace gives an overview of the entire community, for instance, the Qingyunge right on the south, those bungalows, all remind us that we are still in the alley.

Experience the 2012 Venice architecture biennale right here in Beijing,in Yangmeizhu No.39 during the 2012 Beijing Design! Curated by architect David Chipperfield, this year's international festival investigates the theme 'common ground', outlining the ties that bind contemporary architecture culture throughout the world. Comprising photographs, video, interviews, and talks, Designboom's multimedia installation highlights the best of the biennale, with a special look at the Chinese pavilion, curated by art and architecture critic Fang Zhenning under the theme 'Originaire', and examining the nature of ideas and the notion of origin and order.

In 2013, People could find antiques from industrial era in every part of Soloist. For instance, globes, faucets, filing cabinets, radiators, electric clocks, fans, bottles, chairs and lamps in particular. We have 28 distinct oak chairs from different churches in England, from George IV to Victoria, and people could enjoy the elegant curves from every perspectives. Most of the lamps in the shop were from factories during the American Electrical Industry, and they all have the patent on the product registration date. The production of the lamps involved dozens of enterprises, which gave them distinct designs and their own characteristics. These show the spirit of innovation,and the attitude of respect and protection to knowledge. The more you know and feel these antiques, the more you realise the limitation of yourselves and the period you live in. Protecting these old stuffs and retaining the functions of them is the best tribute to the craftsmen of that era.


yanjia no.2

燕家2号|Yanjia No.2

佐维视觉|JOYN:VISCOM

燕家2号空间改造由佐维视觉JOYN:VISCOM创意总监姜剑和Pu Architects建筑工作室共同完成。在遵循老建筑四合院的原貌之上,重新构建出质朴典雅亦不失现代性的人文美学新空间。构造初期,在总面积不改变的情况下,将四个独立建筑的轮廓调整为规则的四边形,赋予其不同的功能区域,呈现满足多元业态空间的合理布局。 庭院围绕中央栾树增加了一轮鱼池,方中构圆,其外围形成环形交通流线,可以更好的欣赏院落水木光影的美。建筑的改造,通过落地玻璃增加院子的通透感,并且使柱子、梁、瓦等清晰可见;去掉传统的雕梁画栋,通过对木材表面的处理,搭配黄铜材质,表现现代建筑的工艺和美感。在延续历史记忆的同时,这些材料在时间的打磨下也会变化出独特颜色与质感。室内搭配独家设计的经过多方考量且富有实用性的几何形家具摆件,跟建筑主体相呼应的同时带入生活美学。

2015年9月19日,燕家2号正式开业,威士忌吧开放。会客厅等也将结合设计周等作为活动场地。

JOYN:VISCOM (佐维视觉)创意传播机构于2005年在北京创立。在近十年的探索中,JV团队基于影像、当代艺术、音乐、建筑、时装等多领域语境,尝试将不同文化切面相互融合、创新,置身实践项目,纪录时代侧影,构筑多领域互通平台,建立品牌传播全新体系。

策划团队 Creative Direction: 大栅栏跨界中心 Dashilar Platform + SANS三思

编辑/统筹 Editing and Coordination: 贾蓉 JIA Rong / 徐轶婧 Yijing XU / 姜岑 JIANG Cen / Neill Mclean GADDES / 阮维莉 Victoria NGUYEN / 汤博深 TANG Boshen

书籍设计 Publication Design: 张蓓丽 Leo CHEUNG / 张肇豪 Tore CHEUNG

项目主体 Project Organizer: 北京广安控股有限公司 Beijing Guangan Holding Co., Ltd. / 北京大栅栏投资有限责任公司 Beijing Dashilar Investment Ltd.

承办方 Undertakers: 北京大栅栏琉璃厂文化发展有限公司 / Beijing Dashilar-Liulichang Cultural Development Ltd. / 大栅栏跨界中心 Dashilar Platform / SANS三思

支持单位 Support by: 北京西城区人民政府 Xicheng District People's Government of Beijing Municipality / 大栅栏指挥部 Dashilar and Liulichang Construction Headquarters / 北京国际设计周 Beijing International Design Week

支持指导 Support & Guidance: 王宁 WANG Ning / 王少峰 WANG Shaofeng / 李岩 LI Yan / 王志忠 WANG Zhizhong / 申献国 SHEN Xianguo / 徐正榕 XU Zhengrong

特别鸣谢 Special Thanks to:
梁井宇 LIANG Jingyu / 陈伯康 Aric CHEN / 毕月 Beatrice LEANZA / 2011 - 2015 大栅栏支持项目及领航员项目参与设计师和大栅栏本地合作对象 Participating designers and local collaborators of Dashilar sponsored projects and Dashilar Pilot Project from 2011-2015


PART II:COMMUNITY BUILDING

Despite its architectural and infrastructural challenges, Dashilar still houses and attracts a vibrant and populous community of residents, tourists, and passersby. Dashilar Platform has from the outset been committed to tangibly improving the living and social conditions for the diverse and growing community of Dashilar. As one of the projects primary objectives, community building has also been one of its greatest challenges as it involves altering longstanding practices, attitudes, and mindsets - of local residents and incoming creatives alike - as well as requiring effective collaboration between a variety of external government agencies and bureaus. Practical implementation has always been difficult through the many social, political, and bureaucratic obstacles this situation creates.

The pilot projects that follow encompass both hardware and software intervention, taking up issues ranging from the provision of public space to augmenting public facilities and services - all with an eye toward bringing real material improvements to everyday life in Dashilar. This section is divided into three sub-sections: Public Facilities, Public Environment, and Community Program. From the products and outcomes of these initial inquiries and experiments, it quickly becomes evident that “community” in Dashilar refers to an extremely heterogeneous, complex, and shifting group of individuals across nine different street/road sub-districts with varying affinities to the project. As a result, there is no simple blanket solution to community building in Dashilar. Instead, what is needed is a deeper understanding of these diverse experiences, needs, and desires, and an exploration of where and how they might productively meet and intertwine.

As a result of these preliminary investigations and proposals, Dashilar Platform is now collaborating with institutions and organisations like Tsinghua University, Creative Urban Design Institute (CUDI), and ADA (Beijing University of Civil Engineering and Architecture), to conduct in-depth socio-cultural investigations within Dashilar, using the Sanjing Community as a case study. As the project transitions into the next phases of its development strategy, we intend to use the outcomes of these studies to provide a base upon which special interest social enterprises and organisations, NGO’s, and government agencies can intercede upon. With the necessary top-down state support and a combination of macro to micro-initiatives, Dashilar Platform will continue to work to improve and enhance community life and relations in Dashilar. 

PUBLIC FACILITIES


Park/Park

杨梅竹斜街|Yangmeizhu Street

奥雅纳|Arup

Managing the growth of private car use is one of Beijing’s main challenges, and this is most evident in the hutongs whose narrow, historic streets are least suited to vehicular traffic. It is already clear that a disproportionate amount of road space is given over to on-street parking, whilst hutong life must pause when a car squeezes along a lane.

It is thus appropriate that the hutongs should take the lead in piloting measures to control car use. 2013,Arup have carried out an initial assessment of the traffic conditions within Dashilar to explore the potential for reducing the amount of car use within the hutongs. Our Design Week exhibition will show our initial ideas for restricting car access and promoting alternative, more sustainable, forms of transport.

During our studies, we observed the disorder created by the cramped parking conditions in Yangmeizhu Hutong, where residents need to relocate bicycles and street furniture every time they park their cars. Recognizing that some private car parking spaces will be essential, at least in the short term, our team developed the idea of transformable barriers to help residents control the use of their parking spaces. At the same time, the barriers contribute to the public environment: when vacant, the spaces are transformed into seating areas or mini-gardens.

In 2014, there is an intention to promote the “Park/Park” in to a wider perspective in the Dashilar area. We will optimise the “Park/Park” design to allow for re-shaping/re-forming, alternative materials, enhanced joint design, cost saving, flexible usage etc. And at the same time we will refine the design after receiving the feedback from community, and provide advice and assistance to the organizer from manufacture to completion.


bcxsy.jpg

BCXSY @ Dashilar

杨梅竹斜街|Yangmeizhu Street

BCXSY

This is city furniture trying to expand the public space of the hutong. This piece of work has combined two of the most common materials found in the hutong: bamboo, with its affinity, and brick, with its surface texture. In this way, it can harmoniously co-exist with the order elements of the hutong and provide a multi-purpose function, creating a private space in the noisy public space of the city.


scooter.jpg

Hutong Scooter: Scooter Share System

众产品|People's Industrial Design Office

The Hutong Scooter was born in the historic alleys of Beijing. It is designed for those small-scale urban environments difficult for other vehicles to access and navigate.

The electric scooter uses a lithium battery to ensure it remains light enough to fold up and carry around by hand.  A wide plywood base and large air-filled wheels provide a comfortable platform for casual cruising on bumpy streets. And an electronic lock is conveniently integrated into the front fork of the scooter to provide peace of mind when exploring on foot.

The Hutong Scooter is also part of a scooter share system. The scooters are pared with charging stations that allows the vehicles to store vertically to save space. Reservations, payment, locking and unlocking are managed through a smart phone app. Hutong Scooter stations are placed next to parking lots and subway stations. They function as natural extensions for public transportation. Cars can be parked further out and people can take scooters into pedestrian friendly areas. The Hutong Scooter is a human-scale alternative to plugging up neighbourhoods with cars. It aims to those that cringe at the idea of being stuck in traffic, looking for parking in city centre, and walking long distances before arriving at places of interest.


Scagnèl

杨梅竹斜街|Yangmeizhu Street

Luca Nichetto Design Studio

When visiting Beijing’s old city area Dashilar, designer Luca Nichetto noticed that the resident treated the alley as their own how. For for example, senior citizens would carry their stools and find a shady spot in the hutong. Vendors, on the other hand, would set up stalls on the streetto sell their products. It inspires the design to create a piece of “urban furniture” dedicated to Dashilar, which can hopefully help to improve the public-infrastructure-lacking old quarter. In the Venetian dialect, or mother tongue of the designer, “Scagnèl” means “stool”. Made of cement, the product is solid and hard, so that residents can either sit and rest on it, or use it as a table for dining. The piece is a rewarding attempt to combine design and social function.。


“Tangram”—Parking Craw in Dashilar

杨梅竹斜街|Yangmeizhu Street

WAX建筑师事物所|WAX Architects, LCD (Laboratory for Computational Design)

Tangram is an interesting ancient Chinese game which over 1600 patterns can be conducted with only seven pieces subdivided from a square. The concept of Tangram is introduced into the design of parking craw in Dashilar, by using simple triangle flat panels to fold into 3d devices which adapt to the daily life in hutong. Besides of its basic parking craw function, the transformation from flat to 3d is allowing the devices can be used as urban furniture such as urban chair, flower pot, notice board, road sign and lamp etc.., where it’s bridging the function to its extensional hutong life.

The Tangram Project in 2014 is a continuation of the Behavioral Bricks——Parking Claw from 2013. Behavioral Bricks means the bricks on the hutong ground are affected by vector field forces, moving along the tracks to form a series different gestures such as arches, spirals, circles, and stripes. Those ground effects of brick behaviors are articulated to varies urban activities such as for people laying down and resting, for certain growing plants, for the hutong lighting, for signs of stores, or functionally use as rejecting the parking to bring more public space back to hutong.


Hutong Public Toilet

Michael Young

A unique public toilet in the Hutong Area next to Tiananmen Square in Beijing. The concept was created to fit around an existing site that was de-commissioned due to ill repair some years earlier. Traditionally, the entire neighbourhood would rely on such facilities as the local housing was created without toilets which gives context to the historical significance of this site.

It was important to consider several important aspects, not only is the site within walking distance of one of China’s most important cultural sites, Tiananmen Square, it is also sandwiched within the classic stone work of basic local housing. The tudio developed the concept to reflect these two extremes.

“We anticipated that there could be need to apply this concept to other buildings of differing proportion, thus we had to examine two important challenges in the structure. Firstly, we needed to make the interior of the toilets a solid and functional environment, one that is built into the ground and is strong and long lasting. One must not ignore that a classic toilet would be five holes in the ground with no flushing or partitions – our consideration was to offer an improved quality of life through the addition of drainage and privacy”

 

PUBLIC ENVIRONMENT


Stair Pavilion

苕帚胡同9号|No.9 Tiaozhou Hutong

 C+ Architects建筑设计事务所 | C+ Architects

Stair Pavilion, located in the heart of Sanjing Community, Dashilar, transforms a former opposite house* of Siheyuan to an experimental social space including wooden stair structure, green wall decoration, reflecting rooftop and glass block wall set within Hutong. This existing urban context provides a unique framework for the space and changing demands in the provision of communication.

A “common living room in Hutong” has been achieved through a variety of designs that are complementary to the architectural setting, and draw subtly on the historic and natural aspect of the site. The main wooden stairs is one of a chain that connects the ground and wall, giving access to a functional space. Different uses for diverse user groups are woven inconspicuously into the space such as seating stairs, play elements and viewing landscape used for neighbors, school kids nearby and visitors to congregate, chat, play and entertain.

The design also interprets a combination of a public strategy and “private room” that small-scale exhibition and workshops can be held indoor on occasions. This flexibility between public and privacy comes from the understanding of existing grading changes. The transformation of the space and the solid entrance enables the integrity and privacy under the stairs. Light is the key design element, and combined with the precise detailing of a glass block wall and 4 ventilation panels, uninterrupted experience has been created.

*The building that faces north in Siheyuan is known as the opposite house (倒座房 dào-zuò-fáng).


BRACHINA

CAMPANAS

Since the Campana brothers’ first visit to Dashilar, they imagined how to bring a natural element to the landscape, to give an aesthetic comfort to the area and to imprint it into the local environment. Therefore, their proposal for Brachina was to build a large pavilion, with a lounge area inside. The goal of this installation is to welcome visitors and warm them under the "Campana Rubber Tree". The Rubber Tree branches grow up & down in a disorderly fashion, creating a natural graphic element and interesting inner spaces and shadows. Campana brothers want to translate the plant’s organic nature into physical, giving permeability and lightness to the installation’s look by the dematerialization of the tree’s strength into a transparent volume. Dashilar’s population density is notoriously high, and public space sorely lacking. Brachina helps to address this shortfall with a space encouraging reflection, and more interaction between residents and visitors.


Parklet in the Hutong

Emote

Good public spaces make great neighborhoods. Amidst modern development, we have forgotten that the spaces between buildings are just as important as buildings themselves. Dashilar’s distinct paradigm of urban revitalization allows it the critical chance to maintain its traditional, human-scale urban fabric. However, encroaching on the scarce hutong spaces is the threat of insatiable private automobility. This project provides an experience of a more balanced streetscape between on-street parking and public space while promoting sustainable and efficient modes of transportation through an extended parklet. With the support of detailed analysis of the area, we are rediscovering this public space in order to reactivate the western Yangmeizhu Street with an inviting community space, ultimately sparking a network of high-quality public spaces in Dashilar.。


In a Simplified World

熔岩北京设计公司|LAVA Beijing

Lava likes to keep things simple. This year's exercise is all about simplifying contradictions of this world; rich/poor, young/old, east/west, tradition/modernity etc.

Inspired by the Chinese characters around us, in which you can sometimes clearly recognise what image they derive from, we took it upon ourselves to catch today's world in clear visuals. Working with as little strokes as possible, we try to capture abstractions into symbols.


Hutong Interaction Wall

大外廊营胡同8号|No.8 Dawailangying Hutong

阿克雅建筑师事务所|Studio Archea

A smartly designed city is one that is both habitable and multifunctional. It is one that has the ability to grow with the people that live in it. A city should be able to adapt to the needs of its residents without the need for widespread upheaval. Beijing is a wonderful example of a well designed city as it encourages social interactions through local meeting points, interactive vestibules, and layered hierarchies. The hutong itself exhibits social synergy between both the users and non users. Lines of siheyuan form hutongs, which can easily connect to others, creating mass-neighborhoods. These hutongs encourage multiple social interactions and relationships via markets, restaurants, musical and dance gatherings, and more. 

Archea has designed a semi-permanent installation in Dashilar Hutong to represent the multi-functionality of a city to its residents. The installation is comprised of multiple ceramic bricks, reminiscent of the construction materials the hutongs themselves are built of. Each brick is 500 mm tall, is self supportable, and can be stacked freely to the desired height along the perimeter of these siheyuan. Much like the design of a city, they are multifunctional. They can double as storage spaces, space dividers, planting boxes, benches, tables, and green wall systems, and vestibules for vegetation. The bricks can also serve many more purposes and functions depending on the needs and wants of the users. A key element of the design is to express interaction between permanent and semi-permanent users of the hutongs. The ceramic block encourages playful modification and integration between various social contexts. Some ceramic bricks can be removable, while others are fixed. Eventually, all the ceramic bricks can be removed freely representing the growth and change of the city.


Rejuvenation, Continuity

杨梅竹斜街 66-80号|No.66-80 Yangmeizhu Xiejie

无界景观设计工作室|View Unlimited, Landscape Architecture Studio

The only 66 meters lane-way in YangmeizhuXiejie is only 1 meter in width at its narrowest, and 4 meters wide at most. Courtyards no. 66, 72,74, 76 ,78 and 80 are located alongside this particular winding lane, among which the Wang family residents - no. 66 and 74 - are dated back to Wanli period in the Ming Dynasty. The Wang family  residents used to be in the herbal medicine business for generations, after 1949 the courtyards changes into different functions including dormitories, bookstores and stationary shops.  The renovation project of YangmeizhuXiejie is an opportunity for function upgrading, modifying the courtyards into a family museum with a cafe, reflecting a snapshot of transitions and changes in historical shops at YangmeizhuXiejie. Buried deeply at the end of the lane-way, courtyard no. 76 was a mixed-courtyard (zayuan) and many residents had relocated, the remaining residents are the Wei family - a traditional Beijing family of four, and migrant workers and security guards. The primary purpose of our renovation program is to firstly communicate with the complicated mix user group, collect their own idea of the site and the lane way spaces, and eventually work out an upgrading scheme within the restrictions and limited framework through understanding the existing residents’ lifestyles. By enhancing the use of public spaces, the rejuvenation program of YangmeizhuXiejie encourages a better communication between different user groups and reduce possible conflicts, while exposing the situational daily live of Hutong to others.

 

community program


DOUBLE HAPPINESS

苕帚胡同8号|No. 8 Tiaozhou Hutong

头条计画.建筑.设计RAMOPRIMO|Instant Hutong, Marcella Campa, Stefano Avesani

One of the most remarkable aspects emerging from observing spontaneous and uncontrolled self-construction in the Hutongs is about the unlimited possibilities, solutions, creative usage of spaces and life-style opportunities that these changes are introducing and adding to the original houses extending the home space on the street and occupying the public domain with private uses that cannot find space inside. 

DOUBLE HAPPINESS project explores these trends by reorganizing new public functions that cannot find space at home. It aims to improve social density, diversity and quality of lifestyles and to amplify the variety of imaginable ways to enjoy life in the neighbourhood.

The project proposes a widespread system of attractive hubs dotting the entire district with new public services. These can vary from the more usual urban camping, pigeon raising or gardening, to more community oriented uses like public stages for theatre and performances, art ateliers, playgrounds and swimming pools, platforms for playing badminton or skating, telescope stations for watching stars and temporary markets. This urban vision will then be further investigated with interventions on single Dazayuan houses [ 大杂院 ]. 

DOUBLE HAPPINESS is also intended as an incubator for opportunities, an imaginative primer for doable visions. While solving basic needs of improved living standards, it will mainly focus on enjoyable aspects of life addressing new cultural, social and psychological needs and providing a diffuse set of joyful solutions to shape a vibrant and creative community. No limit to imagination; creative use of the public space; creation of a roofscape with micro landmarks recognizable by their strong public character, are the main issues of the proposal. 


Micro-Yuan’er

茶儿胡同 8号|No.8 Cha’er hutong

标准营造|ZAO/Standardarchitecture

Micro-Yuan’er is a project by Zhang Ke’s standardarchitecture team to renovate a typical “Big-Messy Courtyard” of Cha'er Hutong #8 in Dashilar area. Micro-Yuan’er is a new type of organic renewal in Beijing old city by inserting a mini art space and a mini library.


Collective Hutong

MVRDV

Dahsilar pilots offers a remarkable opportunity to reflect on the situation of Dashilar Hutong and to develop a pilot project that could contribute to stimulate the hutong life.

From the large repertoire of possible interventions and possible issues to tackle, it took our attention the strong identity and sense of community imbibed in Dashilar Hutong. Nevertheless it lacks the presence of public programs as it is dominated by residential courtyards, a balanced percentage of different programmers is missing.

From its origin to the current situation hutongs evolved according to changing demands over time. Dashilar pilots could be the moment to add the public layer missing in the neighborhood, stimulating even more the community life and creating liveliness and intensity, offering spaces of social encounter and engagement.

By adding public programs to different groups of the community: a playground and a teahouse, a collective place is created that could enhance the diverse and vibrant quality of the hutongs.

By painting the courtyard in red, it will transform it into an explosion of colour, a lively and attractive place for the community and visitors to enjoy. A new exciting destination in and to the Dashilar community.

It will transform the current living environment into something artistic. Done with the community and for the community.Red is the colour of celebration in China. It will celebrate the diversity and liveliness of Dashilar community!


House for the craftsmen

杨梅竹斜街90号|No.90 Yangmeizhu Xiejie

都市实践|URBANUS

Dashilar has profound craft tradition.The long time residency of craftsmen in this southern city area has shaped its local cultural identity. Today, it is necessary to anchor the craftsmen back to this area in order to revitalise this area No.90 of Yangmeizhu Xiejie is a special courtyard which has an inner hutong. The linear raw-house flanking this inner hutong is very much suitable to house a community of craftsmen.The concept starts from providing a unique storefront for each unit of this raw-house. A revolving facade device is designed to give tow positions:one is a recessed space serving as a showcase niche along the hutong, and another one is at its original location.Each user has the flexibility to determine the storefront position, and to decorate it according to his\her own will.This space-making device helps to incubate a community for the craftsmen.


Space for the Community and Creativity -- The Unlimited Hutong

茶儿胡同6号|No.6 Cha’er Hutong

Matali Crasset

The project is composed by two houses connected together, crossing them allows to go from one street to the other. The project consists in an open house for the community living in Dashilar with 3 different complementary poles. 1 Dedicated spaces for kids and parents to experiment with creative activities: play with water, construction... and a long indoor playground designed as a footbridge forest. 2 An open space to socialized inside with two squares and outside on the roof terrace. 3 A residency for young designers which are invited to stay live wit the community and offer animations, activity for the young and parents. The goal of the intervention is to renovate the houses by integrating a specific living logic open to the community. The main goal is to infuse the creativity in the daily life.


Cinemhouse

炭儿胡同28号|No.28 Tan'er Hutong

BaO建筑设计工作室|BaO Architects

The Cinemhouse project is part of the longer-term Pilot project that BaO started undertaking in this Dashilar small courtyard. It's a programmatic experiment on how unexpected usages in an unexpected place can playfully help open-up the imagination on what we can and what we cannot do in the Beijing hutongs. The temporary transformation of a small courtyard into a semi-outdoor amphitheater will act as a starting point for reactivating a site that is in the waiting and offer a space for collective actions. The space is thought of as an infrastructure, a space-tool that can trigger engagement from the local and broader community alike. The Cinemhouse is ambiguous in its nature, it is use-less and use-full, it is specific yet indefinite, it is hyperactive at times and completely inert at others, it is a place where the simple possibility of gathering is endorsed, celebrated, and encouraged.


Condenser for Architecture, Art and Spatial Investigations

茶儿胡同13号|No.13 Cha'er Hutong

WAI Architecture Think Tank / Cruz Garcia & Nathalie Frankowski

ondenser for Architecture, Art and Spatial Investigations will be an independent space for the production, development and presentation of positions and discourses dissecting architecture, art, the build environment and spheres that exert influence on these concepts. A program including exhibitions, artist-in-residency, publications, and events will provide an open platform for cross-disciplinary dialogue and experimental architecture, art, and design projects.

Condenser will offer a broad range of exhibitions, events, publications and installations focusing on the uniqueness of its distinctive architecture and urban condition while responding to international discourses and theories concerning the relationship of art, architecture and the built environment.


PART III: 文化身份

大栅栏文化复兴与其建筑空间的修复和社区网络的有机更新结合起来,构成了大栅栏项目长期发展战略的一个关键组成部分。这必然要求我们重新构想大栅栏的文化认同。我们不应该盲目地保留旧有的东西,也不应该认定他们应该被新的、现代化的东西所取代。因此,我们选择先去准确了解这个独特的地区对于它的居民和游客。对北京这座城市,甚至从更加宏观尺度上,对中国文化遗产所提供的价值。

为了重新认知和评估大栅栏地区的文化资产,我们首先邀请多个极富创造力的机构和个人,系统地开展了针对大栅栏地区的文化价值和文化资产的定性调研,从而积极地寻找、揭示这些无价的品质并且重新赋予他们意义。下文所记载的贾勇和艾里克·格里高利·鲍威尔(Eric Gregory Powell)的摄影项目就代表了两次尝试——他们尝试找到并展示大栅栏精神,以及在其他情况下可能被忽视或不被人察觉的方方面面。在此基础上,我们与本地商家和个人合作,进一步培养和推进大栅栏独特的文化拓展项目。与知名平面设计师原研哉(Kenya Hara)共同为大栅栏打造新视觉形象的合作同样是在这一阶段形成的。在解决如何以有效的方式融入大栅栏的现有文化环境问题的同时,我们也关注大栅栏特有的工匠传统的研究和升级,寻找新颖的方式整合新旧事物,帮助本地居民从谋求生计到发展本地经济,构建大栅栏特色文化认知的可持续业态。以下将通过三个部分:区域文化认同、本地商家合作手艺传承来详细的介绍了这个阶段。

 

LOCAL CULTURE RECOGNITION


moments, moving moments

Timothy Archambault & CYJO

Moments, Moving Moments, by world-renown photographer CYJO. This project was created in collaboration with Dashila(b). It is a cultural documentary that portraits the stories, impressions, and memories of Dashilar. Through static and dynamic images, the documentary explores the rich history and unique characterization of Dashilar and melts them down to ten moments. Both individual and façade is extricated to showcase the historic and evolving identity of a hutong that encases over 600 years of history and resonates with you deep inside.


Dashila(b) -oratory

大外廊营胡同8号厂房|Relay Factory, No.8 Dawailangying Hutong

Utilizing Design Week 2012 as a platform, Dashila(b) sorted out and shared its understandings and experiments on urban development, planning, the construction of community livelihood, and samples of living and business styles. Audiences were as such able to learn about the real background and motivations behind Dashilar’s protection and current upgrading plan. Meanwhile, many activities were also held for visitors during the exhibition period that allowed them to rest, engage, and/ or dialogue freely within the site.

 


mr. duan

刘治治|Liu Zhizhi

Mr.Duan from Dashilar is like a sample of Beijing city life. He enjoys making something he likes, and to him it is like playing. Maybe to other people these are not spectacular creations, but he gives them his full attentions, and it's rare in society now. I chose to make a poster for Mr.Duan, showing some of his skills on the back of the posters, and some of our conversations. This may not be considered a proper "collaboration", though I hope it is a way to promote Mr.Duan, exposing more people to the lifestyle and spirit of a guy in the heart of the hutong.


Luma Lu X Dashilar

杨梅竹斜街|Yangmeizhu Xiejie

Luma Lu

Dashilar Augmented Reality History Walk

To allow visitors to follow a map walking along a Physical route through the streets of Dashilar. Participants will be able to compare the old and new through Pictures, Composited Video (Photos) and via fixed augmented reality devices displayed via digital and physical overlays (some old sound recordings) included.

Activity 2: Dashilar 24-Hour

Luma Lu and Lumao photographic equipment companies joined hands and held a small short-film competition unit during the Beijing International Design Week 2012 period (from Sep. 28 to Oct. 6, 2012).

The topic of the competition was the difference between Dashilar’s daily life in the past and in the present, as seen through the eyes of the residents in the area and local film workers in Beijing. The elaborate shirt films were shown in Dashilar and many sites throughout Beijing Design Week through public projections.

Projection Mapping

To use projection mapping system powering two 14000 Lumens Projectors.

To Projection Map the historical old book shop no 31 New Culture Press Based on Yangmeizhu St.

The original 3D model to be used to add animation and effects to the original building structure.

Graphics will include historical poems and text's published in Yangmeizhu, overlaid onto the building facade with audio spoken by residents.

The building will come alive in time to a pre stage filmed 2 minute piece,

The Shot piece will be acted out by a modern stand in depicting the first Chinese film star Tan Xinpei. The first recording from a Chinese Opera performance in 1905. The look will feel old with scratches on the film in Black and white. As Tan Xinpei dances the building facade lights up and follows his dance moves. Going from wire frame, to lit squares that change as the cymbals crash.


STAG-ing Beijing

大外廊营胡同8号厂房|Relay Factory, No.8 Dawailangying Hutong

Parallel Lab

Like Hong Kong, Beijing has two kind of public spaces: the formal ones which are planned and designed and the informal ones which happen by spontaneous usage of the hutong’s narrow alleys. But Beijing is changing quickly and like in most Asian metropolises young people are more and more tending to meet in interiorized public spaces and get away from the habit of simple outdoor gatherings which is deeply part of the Beijing’s hutong spirit. In February 2012 in Hong Kong Parallel Lab launched STAG: a grassroots, cultural project that gets people to think independently about the space they live and interact in. The project includes the development of an object, called STAG, which is a mutation of a stool and a bag ‐ a tool for Hong Kongers to explore their city and to use it as their playground. 

To bring STAG to the Dashilar's Hutong means now also to bring a part of Hong Kong’s dense and high urban context into the traditional morphology of Beijing. Roaming through parts of Dashilar, far from the tourist trail, STAG will also introduce a faceted account of Dashilar via local storytellers, offering a glimpse of a world usually reserved for long term locals.


Old City Memories

茶儿胡同21号|No.21 Cha’er Hutong

贾勇|Jia Yong

"Old City Memories" is an exhibition created by local Dashilar photographer Jia Yong, 21 black and white photographs were displayed in the authentic residential courtyard of No.21 Cha’er Hutong. The photographs is a condensed record of Jia Yong’s documentation of the people and streets throughout the years, it also demonstrated the changes and developments in the area. This is a show filled with stories and emotions, for new visitors it’s a way to know more about Dashilar’s daily life, and for the local residents, they were touched by familiar old memories. 


Dashilar Photographs by Eric Gregory Powell

大栅栏铁树斜街59号|No.59 Tieshu Xiejie

现代传播《艺术界》| Modern Media, LEAP Magazine

艾里克·格里高利·鲍威尔|Eric Gregory Powell

As one of Beijing Design Week’s core venues, the cluster of spaces around Dashilar get to the heart of the urban transformation Beijing has undergone in the past decade. Before a group of spaces here were remade into temporary white-cube purity to accommodate the Week’s activities, LEAP, the international art magazine of contemporary China, Beijing Dashilar Investment Company – the organization responsible for the revitalization of Dashilar, collaborated with photographer Eric Gregory Powell and 2011 BJDW creative director Aric Chen to create a portfolio of images of the spaces in their “raw” state. This exhibition presents Powell’s photographs of space – technically precise and emotionally poignant – as a way of “haunting” the other exhibitions unfolding nearby with the presence of their former situation. 


Feedback – Dashilar Social Action

大外廊营胡同8号厂房|Factory, No.8 Dawailangying Hutong

北京创弈共和管理顾问有限公司|TOPIA Management Consulting Co. Ltd.

With “Feedback” as the theme, various activities around the topics of “Social Design” and “Creative Redesign” were conducted in the Dashilar area in the form of open workshops. Architects, designers, artists, and geeks from northern Europe and China altogether, carried out hands-on creative production and contributed to the local community. The venue of the event was located at a factory used to produce “feedback loop”, which implicitly fitted NOTCH’s theme. The event in the heart of the Dashilar historic district, through the “feedback” type of community designs and practices by Nordic and local designers, aimed to inherit the local historical culture, to redesign and improve the social life and cultural environment, to activate the local creative energy, and thus to explore how to transform and improve the cultural ecology of the Dashilar area.

 

business collaboration


The Museum of Bicycle Parts

樱桃斜街49号|No. 49 Yingtao Xiejie

CAFA视觉传达学生组|CAFA Visual Communication Student Team

The collaborator is a bicycle repair shop at No. 49 Yingtao Xiejie that has been there for more than 10 years. Through the research of their present life situation, we discover the value of this kind of “time-honored brand “, and put emphasis on its advantages and characteristics. We renovated the shop space, using broken parts of bicycles to design new products and furniture to be shown and sold, as well as redesigning the visual identity of the shop and products, to make it as a brand. We hope it could still service its customers and reap value-added, thus could influence more designers to help small business in this area to upgrade themselves.


Rabbit Grandpa Zhang

杨梅竹斜街19号|No.19 Yangmeizhu Xiejie

菱果|Meta-Lingo Studio

In 2013, Meta-Lingo Studio created concept design for spatial needs of ‘Rabbit Grandpa Zhang’ including logo, anamorphic wall painting, hanging installation and Mid-Autumn Festival smashing ceremony, Hand-painting table.

Mr. Zhang Zhongqiang, the Tu’er Ye (Rabbit God) craftsman has been running his shop in Liu Li Chang for more than a decade. As the stagnant marketing continues, people especially young generation became less familiar with the Rabbit God from old Beijing. Mr. Zhang hoped to revitalize the crafts by attracting the attention back to his new store on Yangmeizhu Xiejie. More than 13 veterans of Rabbit God showcased the craftsmanship and the culture behind Rabbit God at workshops.


Yangmeizhu Adventures in Design

杨梅竹斜街|Yangmeizhu Xiejie

暖岛网| nuandao.com

Nuandao.com worked with 20+ China-based designers to curate an ambulatory experience called Adventures in Design, sponsored by Beijing Dashilar Investment Limited. Designers occupied a hutong formerly used for quotidien commercial purposes, and re-appropriated the space to reflect the concept of rejuvenation through design. Creations by designers including i.c.ology, Brutcake, Twelve Moons, Casual Locations, Snoozer Loser, Hannah Ren and more -- designers who have a commitment to craftsmanship and new innovations via handicrafts. Lectures, talks and workshops were held in the spaces - including a block party called WINE & DESIGN. In addition, Nuandao x Dashila(b) will arrange for designers to work with the Dashilar community to leave permanent design creations in the neighborhood.


Open-shilar Blueprint-- Solo Theatre

延寿街甲5号|No.5 Yanshou Street

打开联合文化创意有限公司|Open Union Studio

The structure of old houses can be likened to a flowerpot. When the soil inside the flowerpot is out of water, it is as hard and as dead as stone. Without flowers in the soil, the flowerpot is pale, meaningless and will always appear lifeless, no matter how you decorate it. So let us loosen the soil, plant the seedings and sprinkle water.

Solo Theatre “I hope one day, not only the passer by, or the visitors brought by rickshaws because of commission, someone would come to the hutong especially, to hear me sing a story.” Kuideshe is a theatre that distils China’s national treasure of its intangible cultural heritage into one remarkable man. Where he is, there is Drama. When the man settled in Dashilar’s hutong, the Drama followed.


Fringe Density

杨梅竹斜街22号|No.22 Yangmeizhu Xiejie

都市实践|URBANUS

Dashilar is an area with a very strong indigenous sense. It differs from the systems of cities of modernity. Learning from this indigenous model will let us understand the multiplicity of our cities. ‘Informality’ is a very important concept, because we are not discussing the formal side of the city, instead we would like to understand a transforming and organic urban model. In the Dashilar area, density is an inevitable problem like in any other modern city. However, the density here is informal. We hope to also research about all other informal density cases, in China and internationally. They all share some similarities. These similarities include social dissemination of indigenous wisdom and the difficult prediction of urban morphological transformation, etc.

During the rapid urbanization of China, indigenous craftsmanship and wisdom is consistently replaced by the simplistic, monolithic and so-called effective contemporary urban lifestyle. Thus the value of the indigenous wisdom is being marginalized. We wish to look for this type of marginalized wisdom in the Dashilar area, and also to transform them to contemporary creativity and integrate them with the society. To upgrade indigenous society is our intention in this project. We wish to use small-scale design to enhance social regeneration.

In the area, we will focus on one specific real case. In this case, there is an old man who has worked with wood his entire life. However, modern mechanized printing methods have gradually replaced his skill. In the Hutong area, he owns his own studio and classroom that also doubles as his living area. However, our question is that how we can upgrade his tradition skill and operation model with contemporary creative business model.

In one of the storefronts in the Dashilar area, we prepare to make use of the traditional craftsman skill of the aforementioned woodworker, and to combine with elements with contemporary arts. We will experiment in the combination of traditional arts and POP arts in this case. In the storefront space, we will set up an installation by making use of the wood-craft as one of the main components. We will base on these tradition wood-craft door gods art, to conduct second time design, in order to express our attitude to the overall Dashilar development. Moreover, we also wish to situate the traditional art within the contemporary art context.


Rebirth of the Shadow Play

前门西河沿147|No. 147 Xiheyan Street, Qianmen

都市实践(北京)建筑设计咨询有限公司|URBANUS Architecture and Design, Inc.

In today’s China, the arts and crafts tradition has been replaced by fast-paced consumerism, while indigenous craftsmanship is being marginalized or ignored. By participating the redesign in Dashilar, we hope that this vanishing heritage can be traced back, and brought to public attention. This effort is two-fold, to revive the old and to energize the new. Our design in BJDW showcases the works and life of “The Shadow Play of the Little Ants” to introduce this handicapped artist group to society as well as to present our views on the urban rehabilitation. 


Family History Streams

杨梅竹斜街70号|No.70 Yangmeizhu Xiejie

WAX建筑师事物所|WAX Architects

A pharmacy shop in the past, a bookstore currently, the urban program transformation in this place has been seen as history of a over 400 years family, and a record of social-political change in the last 60 years in Beijing. This particular architecture is a time machine rather than a single space. In order to reveal the time changing there, we are actually minimalising the design, break the design into small pieces of time elements, which can be assembling, departing, dissolving into a series of overlapping exhibition installations, so called: Family History Streams.

 

craft inheritance


Lantern.jpg

FIREFLY

亚历山大·阿内布林克|Alexander Åhnebrink

The ancient Chinese used to create lamps by trapping fireflies in semi-transparent containers, the bioluminescent bugs would make them glow and since then the lantern has played a central part in Chinese culture. The need for light is as evident today as it was then: once the sun sets on Dashilar and the bustling everyday activities come to an end, darkness falls like a veil over the hutongs. The lack of public lighting and the reluctance to spend money on outdated, high consuming electricity makes these areas close to pitch black at night.

The Firefly Lantern, the result of a successful collaboration between Swedish designer Alexander Åhnebrink, Dashilar Platform and highly skilled local craftsman Zhang Gouging(张国庆) of Tian Pai Shoes Art(天派鞋业), combines modern technology and traditional craftsmanship. The lantern features a hand blown glass softly diffusing a low energy LED light source and a hand sewn leather strap protecting the glass and making it possible to carry and hang wherever suitable. The lantern is rechargeable both by USB cable as well as by solar power, taking advantage of the Beijing desert-like climate. Working both as a portable torch as well as a multi-use lamp for in or out doors, the Firefly lantern solves most users’ lighting needs.


Dashilar X CAFA Educational Programe

 

中央美术学院(CAFA)设计学院|Central Academy of Fine Arts School of Design

In 2013 and 2014, the Dashilar and the China Central Academy of Fine Arts (CAFA) jointly and successfully carry out the educational practice project of the Visual Transmission specialty, Design School, CAFA.

In 2013, the students, by exploring the Dashilar area, discovered and solved many interesting phenomena and problems of Hutong life in a practical-design way.

In 2014, the students cooperated with traditional handicraftsmen of Dashilar area, combined modern designs with traditional handicrafts, and offered the combinations new VI designs and marketing strategies. In this way, traditional handicrafts of Dashilar area would be passed down to more people.


WIREWORKS

杨梅竹斜街97号|No.97 Yangmeizhu Xiejie

舆图工作室、周国立师傅、东方大叶| ATLAS STUDIO, Mr. Zhou Gouli,Eastern Leaves

WIREWORKS is an ongoing project commissioned by the Dashilar Craft Pilot Program that asks young designers to collaborate with a local Dashilar craftspeople to re-imagine product, process, and design. After their first successful collaboration project LIGHTWORKS in 2014, ATLAS has continued working with metal artisan, Mr. Zhou, in exploring new uses for his intricate skill of metal wire weaving. Collaborative experiments are helping to refine and develop a new design language that respects the nuance and beauty of the technique, yet allow for a new contemporary aesthetic to emerge. Furthermore the design objects are updated to reflect modern functional concerns and to help expand the repertoire of the artisan in order to reach new audiences and bridge the past with the future. These products, both lighting and other objects, are an attempt to create a unique local identity for the Dashilar district.

LIGHTWORKS is a series of experiments that play with the sculptural potentials of weaving and projected light.The project seeks to create new connections amongst the existing residents of Dashilar, in particular the craftsmen living and working in the hutong and the new generation of artists, designers, and shopkeepers moving into the area. Mr.Zhou is an expert at the craft of weaving wire by hand to make decorative lanterns. Working with Mr.Zhou we explored the possibilities for new interpretations of this traditional technique in order to create a landmark light installation for the Dashilar district. LIGHTWORKS draws both into context through the medium of light and materiality of hand-crafted production. 


Craft Inheritance -- Woodworking

延寿街84号|No.84 Yanshou Jie

北京度态建筑设计有限公司|dot Architects

Cooperating with a local craftsman Mr. Duan, organize woodworking events for visitors and tourists, to evoke people's interest of making, and to find a sustainable business model for local craftspeople.


Craftsmanship Sketchbook of Dashilar

延寿街82号|No.82 Yanshou Jie

幸绘工作室|Eat#Draw#Love

Eat#Draw#Love Studio aims to protect and promote the old craftsmanship spirit by skectching old craftsman's life.We start our work in Dashilar area by observing their social life,living surroundings and how they create magic things by their hand. We organize our drawings into stories that tells another interesting story.


RE-skin

THE FABRICK LAB

Boxes to keep treasures, rare fabrics from the Song and the Tang Dynasty, sophisticated craft techniques and future textiles: RE-skin – is the story of the improbable encounter, in a pocket of Dashilar. A craft adventure between traditional Beijing Box Maker Guo Derui and unconventional textile experimentalist Elaine Ng Yan Ling, founder of THE FABRICK LAB, Hong Kong.

One of the biggest obstacles Mr Guo is facing is that the traditional textile is so rare that after 10 decades using the same type of fabrics, these fabrics are no longer available. THE FABRICK LAB would like to take this opportunity to modernize the perception and use of these boxes. By revisiting the craft from the past, THE FABRICK LAB creates a range of bespoke fabrics for Mr Guo to create the box. Together the result is to redefine traditional products and approaches to representing traditional heritage with new materials and technologies. 


Youth Goo With Old Peking — The Woodcut New Year Paintings Interaction Workshop

延寿街47号|No.47 Yanshou Jie

小青年儿的老古董|YOUTH GOO

“Youth Goo” is, to some extent, dedicated to the renaissance — revitalizing the traditional Chinese culture and handicraft, and bringing them to the modern life. The existence of designers is to help people live a better life, which inspired us to make a study on the traditional culture and bring them to the modern life. In our project, we work with Mr. Zhangkuo, an old Beijing New Year Painting craftsman from Dashilar. By using the modern designing, we plan to solve problems like how to help old Beijing New Year Pictures regain vitality in Dashilar, how to let modern people understand and love the Old Beijing New Year Paintings, and how to improve the living situation of old craftmen, etc.